

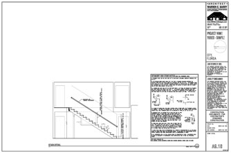
Ramps and Stairs must comply with an array of code requirements. Details of ramps and stairs are required in order to ensure code compliance with rules such as minimum head height clearance, guardrail opening sizes, handrail requirements, tread and riser regulations, maximum slope for ramps, and many more.