

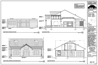
Building Sections are not needed for every project but are necessary for describing more complex designs. Sections make it easier to understand and study elaborate spatial and structural conditions. Sections also make it easier for a client to see the proportions of interior spaces as well as visualize elaborate ceiling conditions and floor terracing when incorporated into a design.