

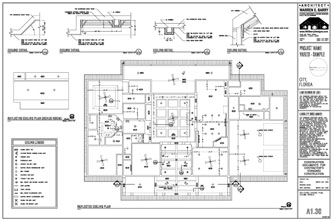
The Reflected Ceiling Plan is used to describe the design of those elements which are above the viewer. These items include ceiling heights, location and height of beams and soffits, and the location of lighting fixtures. Trays, coffers, and vaulted ceilings are also indicated on the Reflected Ceiling Plan as well as their finishes (stain grade cherry wood for example). A Ceiling Legend and Ceiling Details are also included on this sheet. Ceiling Details give additional information about the design which cannot be depicted on the plan itself.